: ASSEMBLEIA DA GRANJA

Mais do que uma operação de reconstrução, o projecto afirma um gesto de continuidade arquitectónica que resgata a memória colectiva da Assembleia da Granja e devolve à Praia da Granja um marco cultural e urbano de grande relevância.

MAPA

ABANDONADO DURANTE MAIS DE QUATRO DÉCADAS, O EDIFÍCIO CHEGOU A UM ESTADO DE RUÍNA QUE SÓ FOI REVERTIDO POR ESTA INTERVERVENÇÃO

A antiga Assembleia da Granja ocupa um quarteirão inteiro no centro da Praia da Granja. É um edifício do final do século XIX que nasceu do impulso de quem veraneava aqui e que, durante décadas, marcou a vida social do lugar. Nos seus anos de esplendor, acolheu figuras de destaque da vida cultural e social portuguesa, entre as quais o Rei D. Carlos e a Rainha D. Amélia, o Príncipe Luís, escritores como Eça de Queirós, Camilo Castelo Branco e Sophia de Mello Breyner, a violoncelista Guilhermina Suggia, entre muitos outros. Ramalho Ortigão, também assíduo frequentador, descrevia já em 1876 a Praia da Granja como “a mais gloriosa, a mais fresca, a mais asseada das estações de recreio em Portugal”. Depois de mais de quarenta anos abandonado, o edifício estava em ruína iminente. A intervenção partiu de um princípio simples: preservar a memória colectiva que a “Assembleia da Granja” representa, mas reconstruindo um edifício capaz de responder aos modos de habitar contemporâneos. O estado de degradação obrigou a demolir o que restava, para o erguer de novo com a mesma escala, volume e linguagem.

PROJECTO/CONCLUSÃO

2015/2023

DONO DA OBRA

Companhia da Assembleia da Granja, S.A.

EQUIPA

Paulo Lousinha com José Miguel Figueiredo, Rafael Sangareau, Shen Qian, Francisco Pinhal, Ana Mota Pinto e Elisa Lousinha

ÁREA

3595 m2

FOTOGRAFIAS

Ivo Tavares Studio


P251 LOUSINHA ARQUITECTOS ASSEMBLEIA DA GRANJA 002.jpeg

O frontão nascente foi desmontado pedra a pedra, numerado e remontado exactamente onde sempre esteve — um gesto de anastilose que garante continuidade ao lugar.

P163_LFA%20 %2024.jpeg

A reconstrução não tenta esconder a passagem do tempo. A linguagem recuperada do edifício original convive com a ampliação a poente, marcada por um grande quebra-luz escultórico que remete, de forma abstracta, para as árvores centenárias da envolvente.

P163_LFA%20 %2024.jpeg
P163_LFA%20 %2024.jpeg
P139 Desenhos-3
SA01.JPG
P139 Desenhos-3
SA01.JPG
P139 Desenhos-3
SA01.JPG

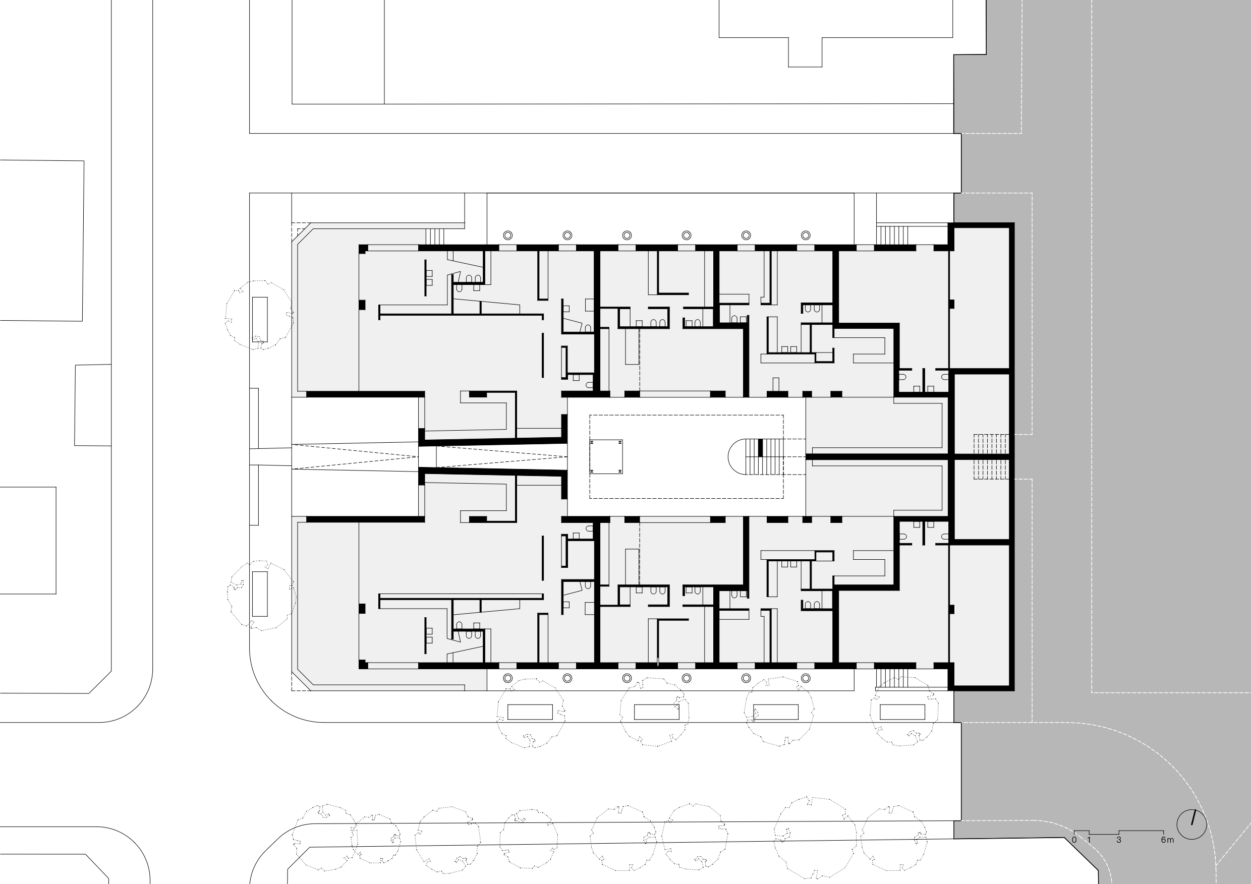
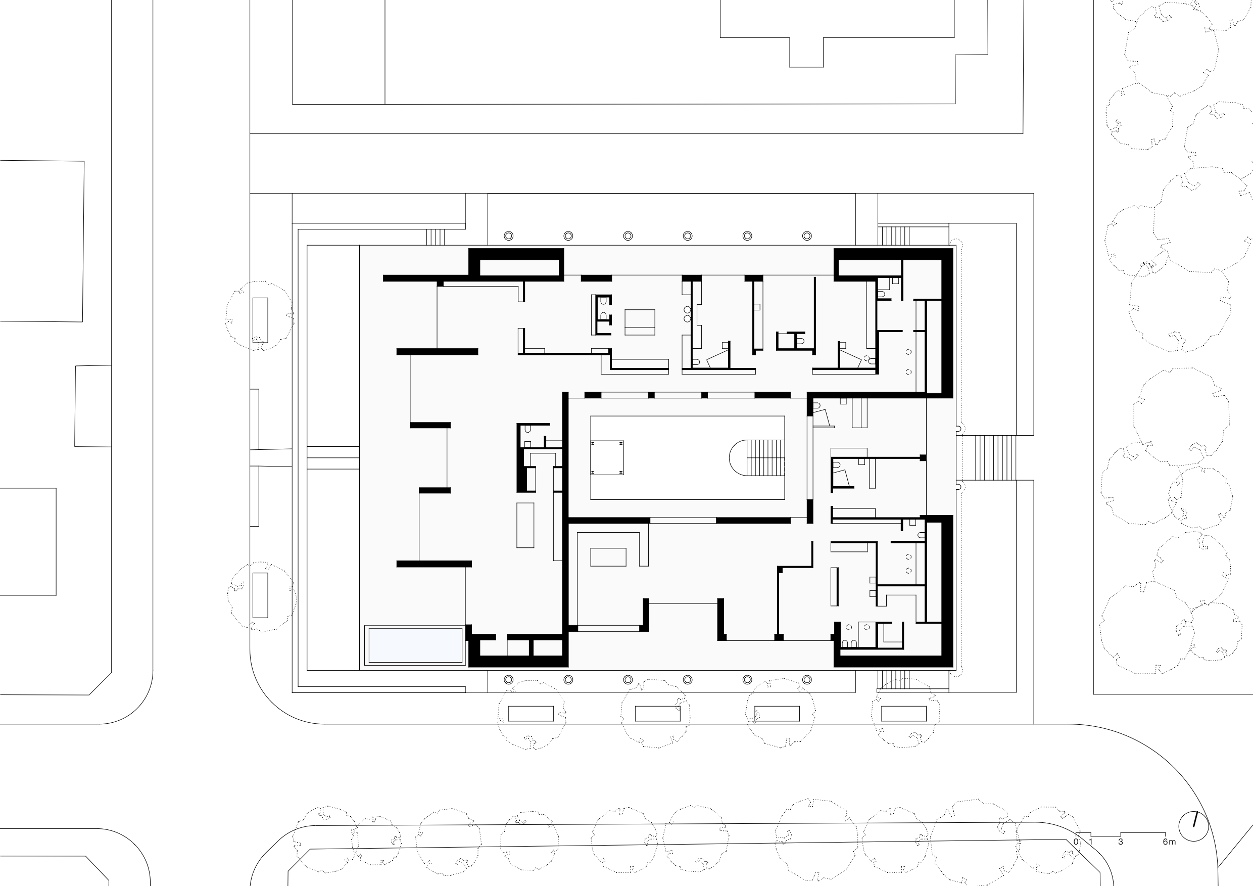
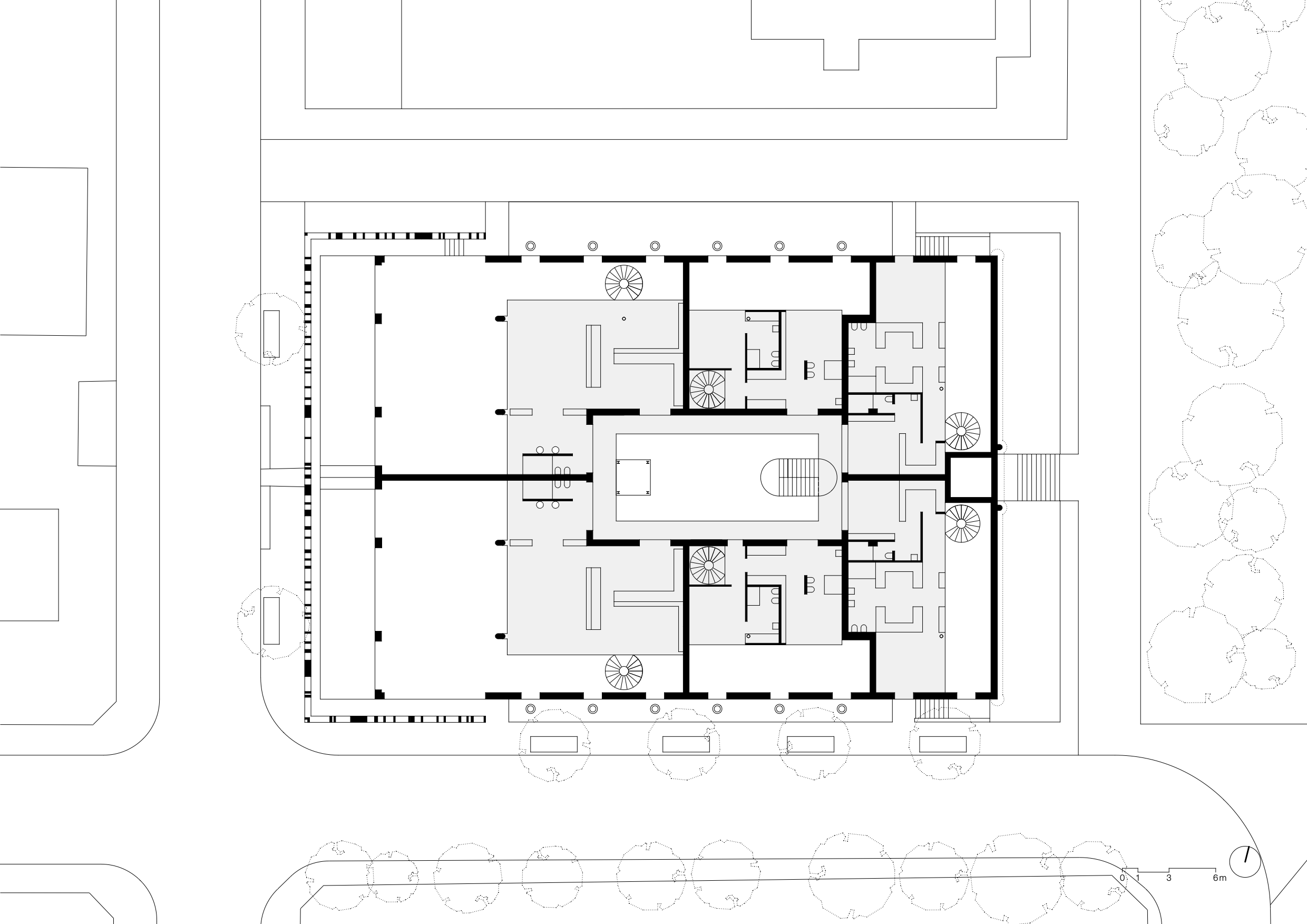
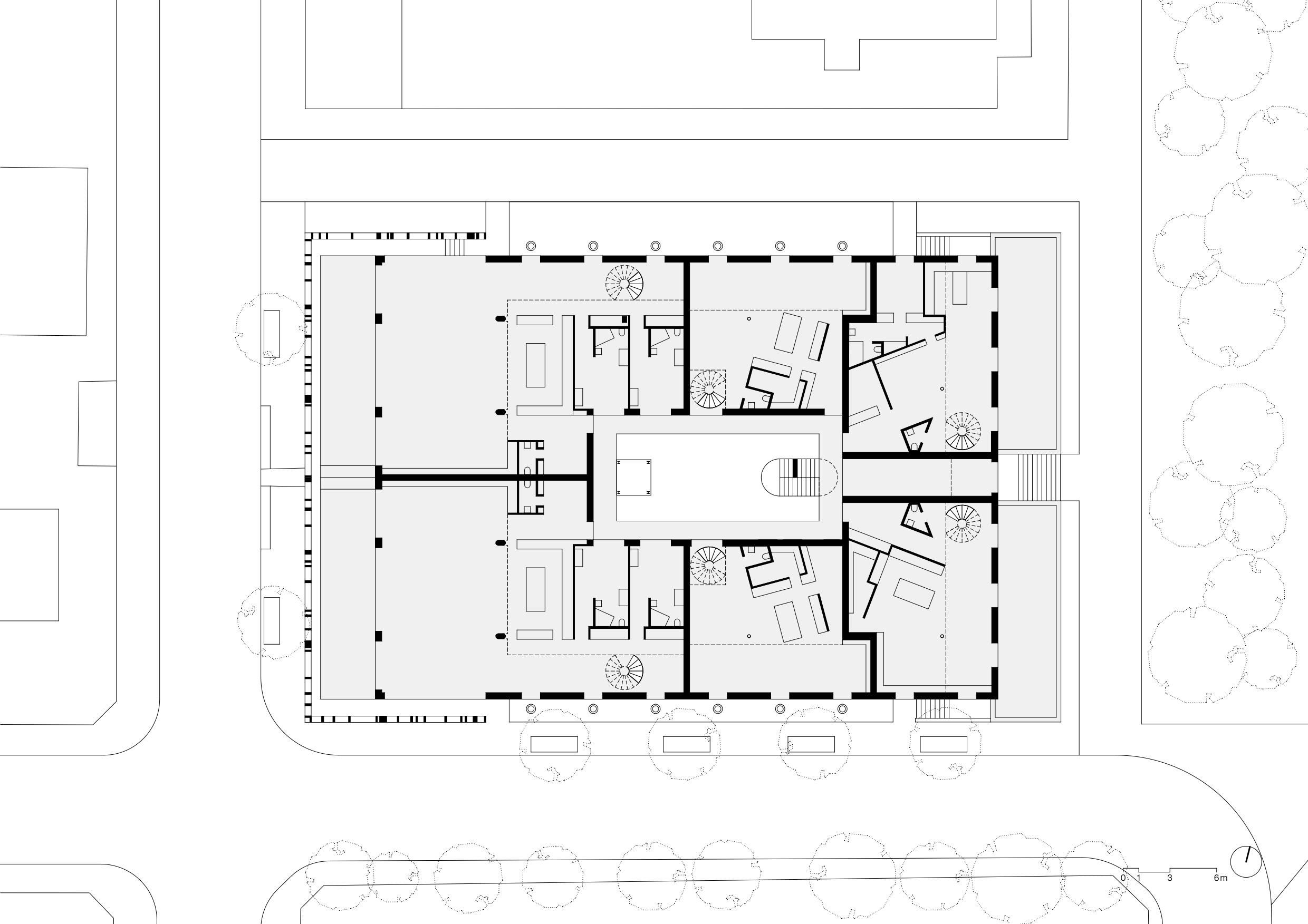
O projecto organiza-se a partir de um eixo de simetria nascente-poente que estrutura os acessos e a distribuição interior. Esse eixo atravessa um pátio que funciona como claustro, iluminando e ventilando naturalmente as circulações e os apartamentos. É o espaço mais surpreendente do edifício, só perceptível quando se entra no seu interior.

P163_LFA%20 %2024.jpeg
P163_LFA%20 %2024.jpeg
P163_LFA%20 %2024.jpeg
P139 Desenhos-3
P251 LOUSINHA ARQUITECTOS ASSEMBLEIA DA GRANJA 021.jpeg

Distribuem-se aqui 14 habitações e duas unidades para comércio ou serviços. As tipologias variam entre apartamentos compactos e unidades com mezanino ou amplas varandas voltadas a poente, algumas com pé-direito duplo e uma relação directa com a luz do fim de tarde sobre o mar. A cave ocupa praticamente todo o lote e é iluminada e ventilada naturalmente através de lanternins e da transparência dos acessos.

P139 Desenhos-3
SA01.JPG
P139 Desenhos-2
SA02.JPG
P163_LFA%20 %2024.jpeg
P163_LFA%20 %2024.jpeg
P139 Desenhos-2
P251 LOUSINHA ARQUITECTOS ASSEMBLEIA DA GRANJA 117.jpeg
P163_LFA%20 %2024.jpeg

A intervenção devolve continuidade à frente urbana da Granja e resolve uma ferida que durante décadas se impôs a quem chegava de comboio. Ao trazer novos moradores e espaços de uso público, contribui também para a actividade local num território ainda marcado pela sazonalidade.